Fabio, un giovane professionista di Napoli, ha acquistato a Torino un piccolo alloggio di poco meno di 40 mq. da mettere a reddito; un buon affare, ma l'appartamento si presentava in condizioni praticamente invivibili.
L'obiettivo del progetto è stato di rendere una abitazione in condizioni disastrose vivibile per un nucleo di 1-2 persone, ottimizzando al massimo gli spazi disponibili, con una ristrutturazione semplice e con costi contenuti.
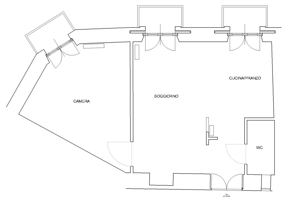
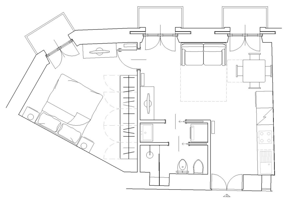
Il progetto ha previsto lo smantellamento del bagno originario, piccolo, privo di bidet e non disimpegnato rispetto agli ambienti contigui ed il suo spostamento nella zona più buia (l'alloggio ha un solo affaccio verso strada), suddividendolo in antibagno con zona lavabo e lavanderia e bagno con wc, bidet e doccia, il tutto dotato di aerazione forzata.
La restante parte della zona living, articolata attorno al bagno, ha previsto il posizionamento di una cucina compatta in zona contigua all'ingresso dedicando lo spazio affacciantesi sulla via esterna attraverso due ampie portefinestre a zona pranzo e soggiorno.
La camera da letto di forma irregolare, è stata mantenuta nella posizione preesistente spostandone il muro a confine con il living in modo da ottenere la metratura per una camera doppia.
Il progetto ha previsto il rifacimento dei pavimenti, di tutti gli intonaci, lo spostamento e la sostituzione dei radiatori, il rifacimento completo ed a norma dell'impianto elettrico, la realizzazione di impianto di raffrescamento a servizio del living e della camera da letto.
